Inspection Procedure 4: When the ignition switch is turned to the "ON" position (engine stopped), the ASTC OFF indicator lamp dose not illuminate.






caution If there is any problem in the CAN bus lines, an incorrect diagnosis code may be set. Diagnose the CAN bus lines before the diagnosis codes (Refer to GROUP 54C, CAN bus-line diagnostic flow ).

OPERATION




COMMENT




PROBABLE CAUSES



  • Malfunction of the combination meter
  • Damaged harness, connector
  • Malfunction of the ASTC-ECU


DIAGNOSIS



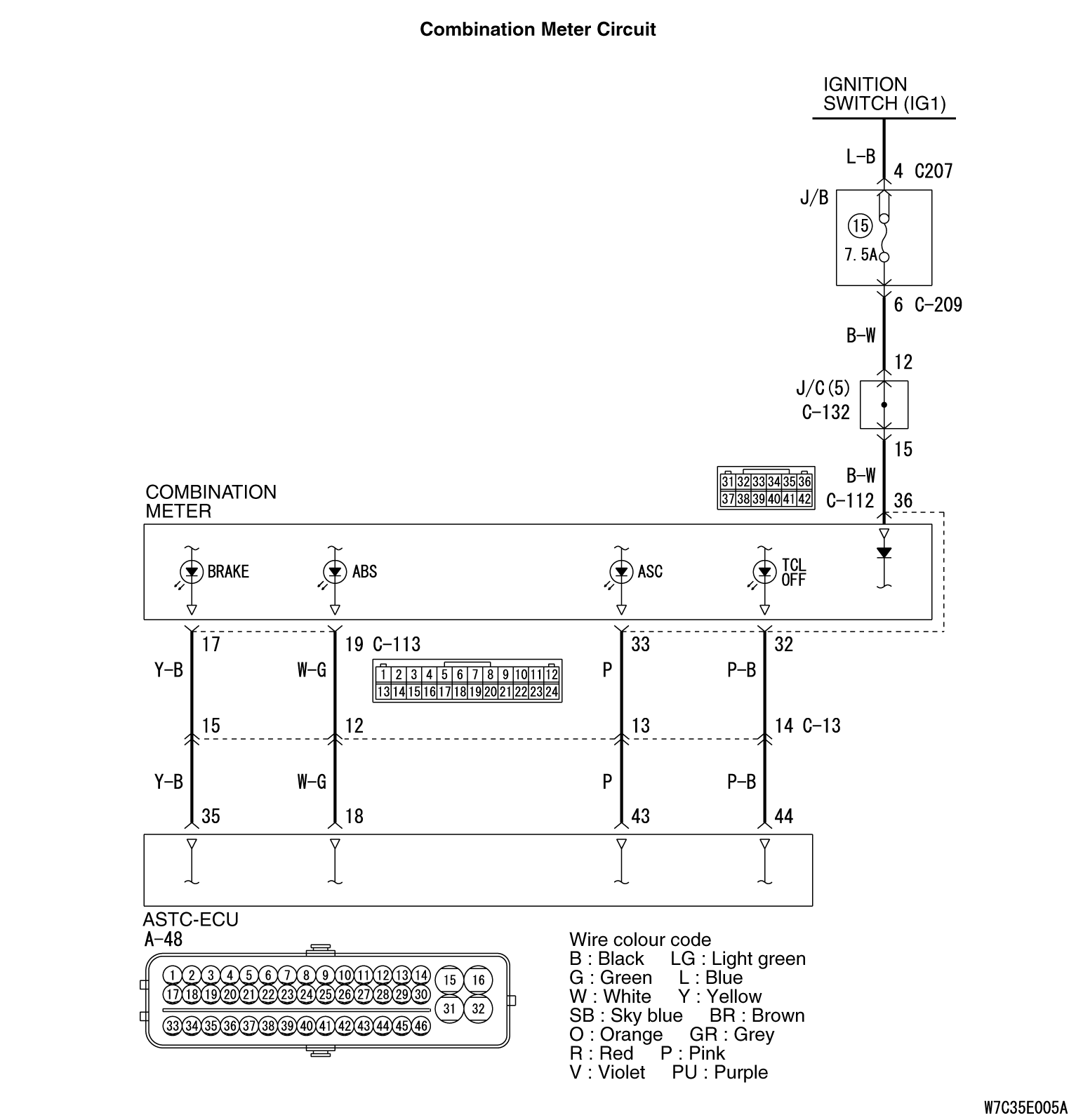
STEP 1. Check the ASTC-ECU connector A-48, intermediate connector C-13, and combination meter connector C-112 for loose, corroded or damaged terminals, or terminals pushed back in the connector.






Q. Is the check result normal?

Go to Step 2.

Repair or replace the damaged component(s). Then go to Step 6.

STEP 2. Check the harness wires between ASTC-ECU connector A-48 (terminal 44) and intermediate connector C-13 (terminal 14).





Q. Is the check result normal?

Go to Step 3.

Repair the wiring harness. Then go to Step 6.

STEP 3. Check the harness wires between intermediate connector C-13 (terminal 14) and combination meter connector C-112 (terminal 32).





Q. Is the check result normal?

Go to Step 4.

Repair the wiring harness. Then go to Step 6.

STEP 4. Retest the system


Q. Turn the ignition switch to the "ON" position. Do the ASTC OFF indicator lamp illuminate for three seconds, and then go out after the engine starts?

It can be assumed that this malfunction is intermittent. Refer to GROUP 00, How to Use Troubleshooting/Inspection Service Points - How to Cope with Intermittent Malfunction .
Replace the combination meter.Then go to Step 5.

STEP 5. Retest the system


Q. Turn the ignition switch to the "ON" position. Do the ASTC OFF indicator lamp illuminate for three seconds, and then go out after the engine starts?

The procedure is complete.
Replace the hydraulic unit (integrated with ASTC-ECU).Then go to Step 6.

STEP 6. Retest the system


Q. Turn the ignition switch to the "ON" position. Do the ASTC OFF indicator lamp illuminate for three seconds, and then go out after the engine starts?

The procedure is complete.
Return to Step 1.