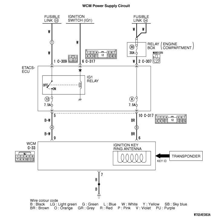
Inspection Procedure 4: Check the WCM power supply and earth circuits.














DIAGNOSIS PROCEDURE


STEP 1. Connector check: C-33 WCM connector


Q. Is the check result normal?

Go to Step 2.
Repair the defective connector.

STEP 2. Voltage measurement at the C-33 WCM connector.


(1)Disconnect the connector and measure the resistance at the wiring harness side.
(2)Turn the ignition switch to the ON position.
(3)Measure the voltage between the C-33 WCM connector terminals No. 6/9, and the body earth.
OK: Battery voltage

Q. Is the check result normal?

Go to Step 4.
Go to Step 3.

STEP 3. Check the wiring harnesses between the C-33 WCM connector terminal No. 6, 9 and the fusible link (36, 34).


note Before checking the wiring harnesses, check the joint connectors C-307, C-309, and C-317, and repair if necessary.

  • Check the power supply line for open circuit.

Q. Is the check result normal?

Go to Step 4.
Repair the wiring harness.

STEP 4. Resistance measurement at the C-33 WCM connector.


(1)Disconnect the connector and measure the resistance at the wiring harness side.
(2)Turn the ignition switch to the ON position.
(3)Measure the resistance between the C-33 WCM connector terminal No. 7 and the body earth.
OK: Continuity exists (2 Ω or less)

Q. Is the check result normal?

The diagnosis is complete.
Go to Step 5.

STEP 5. Check the wiring harness between the C-33 WCM connector terminal No. 7 and the body earth.



  • Check the earth wires for open circuit.

Q. Is the check result normal?

The diagnosis is complete.
Repair the wiring harness.