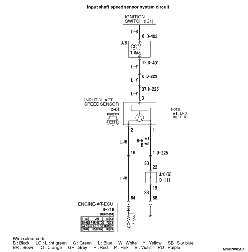
Code No.P1766 (P0715): Input shaft speed sensor system
























OPERATION




DIAGNOSIS CODE SET CONDITIONS





PROBABLE CAUSES



  • Malfunction of input shaft speed sensor
  • Malfunction of reverse clutch retainer
  • Damaged harness wires and connectors
  • Malfunction of the engine-A/T-ECU

DIAGNOSIS PROCEDURE


STEP 1. M.U.T.-III data list


Item 5: Input shaft speed sensor (Refer to data list reference table ).

Q. Is the check result normal?

Intermittent malfunction (Refer to GROUP 00 - How to Cope with Intermittent Malfunction ).
Go to Step 2.

STEP 2. Connector check: C-01 input shaft speed sensor connector


Check for the contact with terminals.

Q. Is the check result normal?

Go to Step 3.
Repair the defective connector.

STEP 3. Measure the resistance at input shaft speed sensor connector C-01.


Disconnect the connector, and measure the resistance between terminal 1 and earth at the wiring harness side.
OK: Continuity (Less than 2 Ω)

Q. Is the check result normal?

Go to Step 9.
Go to Step 4.

STEP 4. Measure the voltage at engine-A/T-ECU connector D-216.


(1)Connect input shaft speed sensor connector C-01.
(2)Turn the ignition switch to the ON position.
(3)Measure the voltage between engine-A/T-ECU connector D-216 terminal No.88 and earth.
OK: 0.5 V or less

Q. Is the check result normal?

Go to Step 7.
Go to Step 5.

STEP 5. Connector check: D-216 engine-A/T-ECU connector


Check for the contact with terminals.

Q. Is the check result normal?

Go to Step 6.
Repair the defective connector.

STEP 6. M.U.T.-III data list


Item 5: Input shaft speed sensor (Refer to data list reference table ).

Q. Is the check result normal?

Intermittent malfunction (Refer to GROUP 00 - How to Cope with Intermittent Malfunction ).
Replace the engine-A/T-ECU.

STEP 7. Connector check: D-225 intermediate connector, D-111 J/C (5), D-216 engine-A/T-ECU connector


Check for the contact with terminals.

Q. Is the check result normal?

Go to Step 8.
Repair the defective connector.

STEP 8. Check the harness between input shaft speed sensor connector C-01 terminal No.1 and engine-A/T-ECU connector D-216 terminal No.88.


Check the earth line for open circuit.

Q. Is the check result normal?

Go to Step 6.
Repair the wiring harness.

STEP 9. Measure the voltage at input shaft speed sensor connector C-01.


(1)Disconnect the connector, and measure the voltage between terminal 3 and earth at the wiring harness side.
(2)Turn the ignition switch to the ON position.
OK: System voltage

Q. Is the check result normal?

Go to Step 12.
Go to Step 10.

STEP 10. Connectors check: D-401 J/B connector, D-225 and D-229 intermediate connector


Check for the contact with terminals.

Q. Is the check result normal?

Go to Step 11.
Repair the defective connector.

STEP 11. Check the harness between input shaft speed sensor connector C-01 terminal No.3 and J/B connector D-401 terminal No.12.


Check the power supply line for short and open circuit.

Q. Is the check result normal?

Go to Step 6.
Repair the wiring harness.

STEP 12. Measure the voltage at input shaft speed sensor connector C-01.


(1)Disconnect the connector, and measure the voltage between terminal 2 and earth at the wiring harness side.
(2)Turn the ignition switch to the ON position.
OK: 4.5 - 4.9 V

Q. Is the check result normal?

Go to Step 18.
Go to Step 13.

STEP 13. Measure the voltage at engine-A/T-ECU connector D-216.


(1)Disconnect input shaft speed sensor connector C-01.
(2)Turn the ignition switch to the ON position.
(3)Measure the voltage between engine-A/T-ECU connector D-216 terminal No.64 and earth.
OK: 4.5 - 4.9 V

Q. Is the check result normal?

Go to Step 16.
Go to Step 14.

STEP 14. Connector check: D-225 intermediate connector, D-111 J/C (5), D-216 engine-A/T-ECU connector


Check for the contact with terminals.

Q. Is the check result normal?

Go to Step 15.
Repair the defective connector.

STEP 15. Check the harness between input shaft speed sensor connector C-01 terminal No.2 and engine-A/T-ECU connector D-216 terminal No.64.


Check the output line for short circuit.

Q. Is the check result normal?

Go to Step 6.
Repair the wiring harness.

STEP 16. Connector check: D-225 intermediate connector, D-111 J/C (5), D-216 engine-A/T-ECU connector


Check for the contact with terminals.

Q. Is the check result normal?

Go to Step 17.
Repair the defective connector.

STEP 17. Check the harness between input shaft speed sensor connector C-01 terminal No.2 and engine-A/T-ECU connector D-216 terminal No.64.


Check the output line for open circuit.

Q. Is the check result normal?

Go to Step 6.
Repair the wiring harness.

STEP 18. Measure the output wave pattern of the input shaft speed sensor at engine-A/T-ECU connector D-216 (using an oscilloscope).


(1)Shift the selector lever to the D range.
(2)Accelerate the vehicle to approximately 50 km/h (shift range; 3rd).
(3)Connect an oscilloscope, and measure the voltage between engine-A/T-ECU connector D-216 terminal No.64 and earth.
OK: A wave pattern such as the one shown on (Check Procedure Using an Oscilloscope) should be output, and the maximum value should be 4.8 V or more and the minimum value should be 0.8 V or less. There should be no noise in the output wave pattern.

Q. Is the check result normal?

Go to Step 6.
Go to Step 19.

STEP 19. Connector check: D-216 engine-A/T-ECU connector


Check for the contact with terminals.

Q. Is the check result normal?

Go to Step 20.
Repair the defective connector.

STEP 20. Replace the input shaft speed sensor and then recheck the diagnosis code.


(1)Replace the input shaft speed sensor.
(2)Test drive the vehicle.
(3)Check if the diagnosis code is set.

Q. Is diagnosis code P1766 (P0715) set?

Go to Step 21.
The inspection is complete.

STEP 21. Reverse clutch retainer inspection


Visually check the reverse clutch retainer for damage.

Q. Is the check result normal?

Eliminate the cause of the noise.
Replace the reverse clutch retainer.