Code No.P1773 (P0753) Low-reverse solenoid valve system










OPERATION
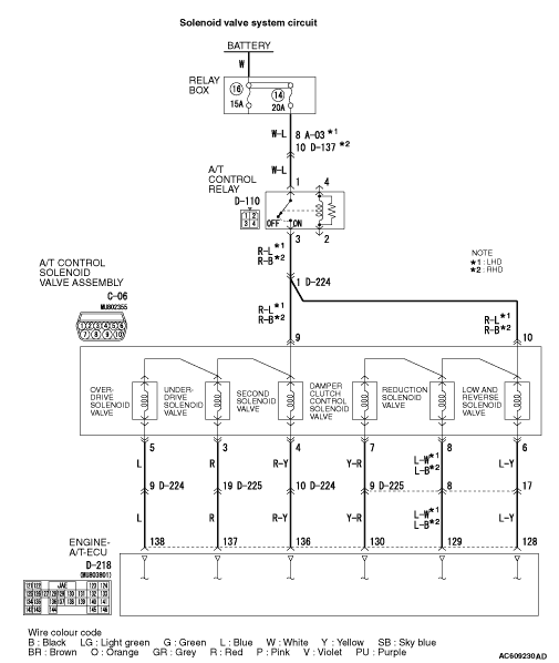
- Solenoid valve closes or opens according to the signals from the ECU.
- The ECU energises or deenergises solenoid valve, based on input signals such as accelerator pedal position sensor opening angle, inhibitor switch, etc.
DIAGNOSIS CODE SET CONDITIONS
PROBABLE CAUSES
- Malfunction of low-reverse solenoid valve
- Damaged harness wires and connectors
- Malfunction of the engine-A/T-ECU
DIAGNOSIS PROCEDURE |
STEP 1. M.U.T.-III diagnosis code |
Q.
Are diagnosis codes P1777 (P0773) and P1778 (P0743) set?
|
Go to Step 9. |
|
Go to Step 2. |
|
STEP 2. M.U.T.-III actuator test |
| Item 1: Low-reverse solenoid valve |
| OK: Operating sound can be heard. |
Q.
Is the check result normal?
|
Intermittent malfunction (Refer to GROUP 00 - How to Cope with Intermittent Malfunction ). |
|
Go to Step 3. |
|
STEP 3. Connector check: C-06 A/T control solenoid valve assembly connector |
| Check for the contact with terminals. |
Q.
Is the check result normal?
|
Go to Step 4. |
|
Repair the defective connector. |
|
STEP 4. Measure the resistance at A/T control solenoid valve assembly connector C-06. |
| Disconnect the connector, and measure the resistance between terminal No.6 and No.10 at the solenoid valve side. |
| OK: 2.7 - 3.4 Ω (A/T fluid temperature 20°C) |
Q.
Is the check result normal?
|
Go to Step 5. |
|
Check the low-reverse solenoid valve and solenoid valve harness. |
|
STEP 5. Measure the voltage at engine-A/T-ECU connector D-218. |
| (1)Connect A/T control solenoid valve assembly connector C-06. |
| (2)Turn the ignition switch to the ON position. |
| (3)Measure the voltage between engine-A/T-ECU connector D-218 terminal No.128 and earth. OK: System voltage |
Q.
Is the check result normal?
|
Go to Step 8. |
|
Go to Step 6. |
|
STEP 6. Connector check: D-225 intermediate connector, D-218 engine-A/T-ECU connector |
| Check for the contact with terminals. |
Q.
Is the check result normal?
|
Go to Step 7. |
|
Repair the defective connector. |
|
STEP 7. Check the harness between A/T control solenoid valve assembly connector C-06 terminal No.6 and engine-A/T-ECU connector D-218 terminal No.128. |
| Check the output line for short and open circuit. |
Q.
Is the check result normal?
|
Go to Step 8. |
|
Repair the wiring harness. |
|
STEP 8. M.U.T.-III actuator test |
| Item 1: Low-reverse solenoid valve |
| OK: Operating sound can be heard. |
Q.
Is the check result normal?
|
Intermittent malfunction (Refer to GROUP 00 - How to Cope with Intermittent Malfunction ). |
|
Replace the engine-A/T-ECU. |
|
STEP 9. Connector check: C-06 A/T control solenoid valve assembly connector |
| Check for the contact with terminals. |
Q.
Is the check result normal?
|
Go to Step 10. |
|
Repair the defective connector. |
|
STEP 10. Measure the resistance at A/T control solenoid valve assembly connector C-06. |
| Disconnect the connector, and measure the resistance between terminal No.6 and No.10 at the solenoid valve side. |
| OK: 2.7 - 3.4 Ω (A/T fluid temperature 20°C) |
Q.
Is the check result normal?
|
Go to Step 11. |
|
Check the solenoid valve harness. |
|
STEP 11. Connector check: D-110 A/T control relay connector, D-224 intermediate connector |
| Check for the contact with terminals. |
Q.
Is the check result normal?
|
Go to Step 12. |
|
Repair the defective connector. |
|
STEP 12. Check the harness between A/T control solenoid valve assembly connector C-06 terminal No.10 and A/T control relay connector D-110 terminal No.3. |
| Check the power supply line for short and open circuit. |
Q.
Is the check result normal?
|
Go to Step 8. |
|
Repair the wiring harness. |
|


