Inspection Procedure 9: Condenser Fan does not Operate.






















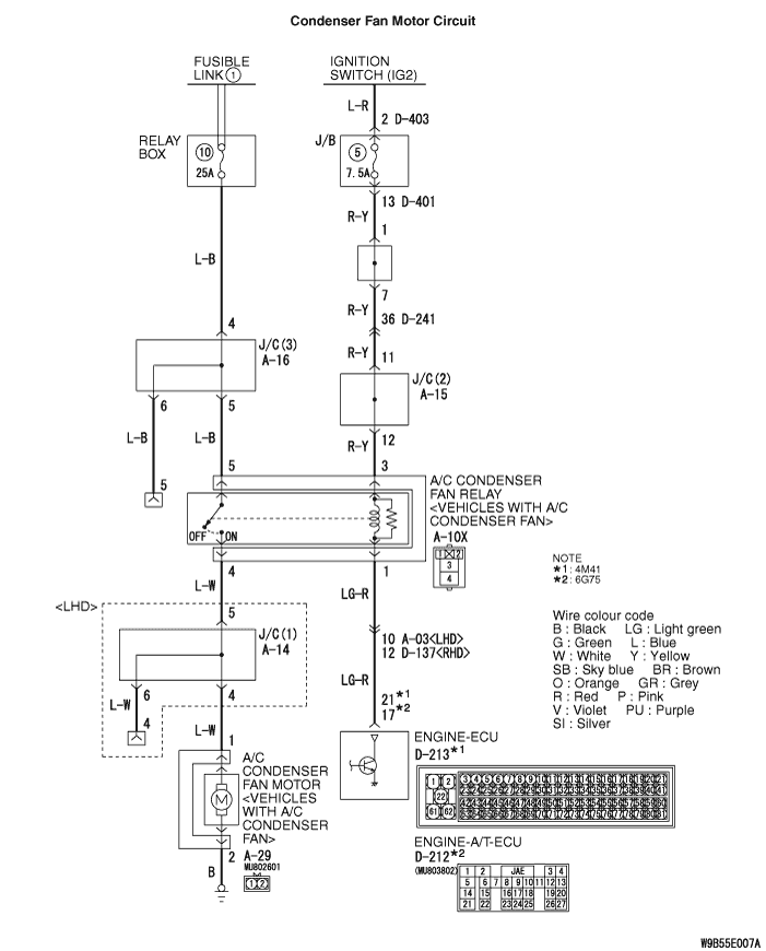
CIRCUIT OPERATION




TROUBLESHOOTING HINTS



  • Malfunction of the engine-ECU <M/T>
  • Malfunction of the engine-A/T-ECU <A/T>
  • Malfunction of the condenser fan relay
  • Malfunction of the condenser fan motor
  • Damaged the wiring harness or connectors

DIAGNOSIS PROCEDURE


STEP 1. Check the A/C and outside/inside air selection damper control motor operation.


Q. Do the A/C and outside/inside air selection damper control motor work normally?

Go to Step 2.
Refer to Inspection procedure 14 "Malfunction of the A/C-ECU power supply system ."

STEP 2. Connector check: D-213 engine-ECU connector <4M41>, D-212 engine-ECU connector <6G75-M/T> or engine-A/T-ECU connector <6G75-A/T> and A-29 A/C condenser fan motor connector


Q. Is the check result normal?

Go to Step 3.
Repair the connector.

STEP 3. Voltage measurement at A-29 A/C condenser fan motor connector.


(1)Disconnect the connector, and measure at the wiring harness side.
(2)Turn the ignition switch to the "ON" position.
(3)Disconnect engine-ECU connector D-213 and earth terminal 39. <4M41>
(4)Disconnect engine-ECU <6G75-M/T> or engine-A/T-ECU <6G75-A/T> connector D-212 and earth terminal 17.
(5)Measure the voltage between terminal 1 and body earth.
OK: System voltage

Q. Is the check result normal?

Go to Step 12.
Go to Step 4.

STEP 4. Connector check: A-10X A/C condenser fan relay connector


Q. Is the check result normal?

Go to Step 5.
Repair the connector.

STEP 5. Check the A/C condenser fan relay continuity.


Refer to .

Q. Is the check result normal?

Go to Step 6.
Replace the rear window defogger relay.

STEP 6. Voltage measurement at A-10X A/C condenser fan relay connector.


(1)Remove the relay, and measure at the junction block side.
(2)Measure the voltage between terminal 5 and body earth.
OK: System voltage

Q. Is the check result normal?

Go to Step 8.
Go to Step 7.

STEP 7. Check the wiring harness between A-10X A/C condenser fan relay connector terminal No.5 and the fusible link (1).


note Prior to the wiring harness inspection, check joint connector A-16, and repair if necessary.

  • Check the A/C condenser fan relay power supply line for open or short circuit.

Q. Is the check result normal?

The trouble can be an intermittent malfunction (Refer to GROUP 00, How to Cope with Intermittent Malfunction ).
Repair the wiring harness.

STEP 8. Voltage measurement at A-10X A/C condenser fan relay connector.


(1)Remove the relay, and measure at the junction block side.
(2)Turn the ignition switch to the "ON" earth position.
(3)Voltage between terminal 3 and body earth.
OK: System voltage

Q. Is the check result normal?

Go to Step 10.
Go to Step 9.

STEP 9. Check the wiring harness between A-10X A/C condenser fan relay connector No.3 and ignition switch (IG2).


note Prior to the wiring harness inspection, check joint connector A-15, D-42, intermediate connectors D-241, junction block connectors D-401 and D-403 repair if necessary.

  • Check the A/C condenser fan relay power supply line for open circuit.

Q. Is the check result normal?

The trouble can be an intermittent malfunction (Refer to GROUP 00, How to Cope with Intermittent Malfunction ).
Repair the wiring harness.

STEP 10. Check the wiring harness between A-10X A/C condenser fan relay connector No.1 and D-213 engine-ECU connector No.39 <4M41>, D-212 engine-ECU connector <6G75-M/T> or engine-A/T-ECU connector <6G75-A/T> No.17.


note Prior to the wiring harness inspection, check intermediate connectors D-137, and repair if necessary.

  • Check the A/C condenser fan power supply line for open circuit.

Q. Is the check result normal?

Go to Step 11.
Repair the wiring harness.

STEP 11. Check the wiring harness between A-10X A/C condenser fan relay connector No.4 and A-29 A/C condenser fan motor connector No.1.


note Prior to the wiring harness inspection, check joint connector A-14, and repair if necessary.

  • Check the A/C condenser fan line for open or short circuit.

Q. Is the check result normal?

The trouble can be an intermittent malfunction (Refer to GROUP 00, How to Cope with Intermittent Malfunction ).
Repair the wiring harness.

STEP 12. Resistance measurement at A-29 A/C condenser fan motor connector.


(1)Disconnect the connector, and measure at the wiring harness side.
(2)Continuity between terminal 2 and body earth.
OK: 2Ω or less

Q. Is the check result normal?

Go to Step 14.
Go to Step 13.

STEP 13. Check the wiring harness between A-29 A/C condenser fan motor connector terminal No.2 and earth.



  • Check the A/C condenser fan motor earth line for open or short circuit.

Q. Is the check result normal?

The trouble can be an intermittent malfunction (Refer to GROUP 00, How to Cope with Intermittent Malfunction ).
Repair or replace the wiring harness.

STEP 14. Check the A/C condenser fan motor.


Refer to .

Q. Does the rear window defogger work normally?

Repair the A/C-ECU.
Repair the A/C condenser fan motor.