Code No.53: Pump motor system (seizure of pump motor, or electric current detecting circuit failure of ASTC-ECU)















OPERATION



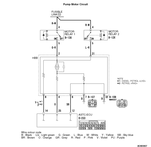
  • The pump motor operates if the motor relay A or motor relay B turn to ON.
  • The ASTC-ECU monitors the pump motor (at 25 terminal).
  • The ASTC-ECU monitors the power supply current for the pump motor at 14 terminal, and earth current at 12 terminal, respectively, to know whether the pump motor is locked or not.

DIAGNOSIS CODE SET CONDITIONS




PROBABLE CAUSES



  • Malfunction of the pump motor [Integrated with the hydraulic brake booster (HBB)]
  • Damaged wiring harness or connector
  • Malfunction of the ASTC-ECU
  • Malfunction of the master cylinder and hydraulic unit assembly [Integrated with the hydraulic brake booster (HBB)]

DIAGNOSIS


STEP 1. Check the sound of the HBB buzzer.


Q. Does the HBB buzzer sound?

Check the pump motor for seizure, and replace the pump motor if necessary. Then go to Step 10.
Go to Step 2.

STEP 2. Check ASTC-ECU connector D-233, HBB connector B-107 and B-108 for loose, corroded or damaged terminals, or terminals pushed back in the connector.


Q. Is the check result normal?

Go to Step 3.
Repair the faulty connector or terminal. Then go to Step 10.

STEP 3. Check the HBB earth circuit at HBB harness connector B-107.


(1)Disconnect HBB connector B-107 and measure at the harness connector (component side).
(2)Measure the resistance between terminal 7 and body earth.
OK: Continuity (Less than 2 ohms)

Q. Is the measured resistance less than 2 ohms?

Go to Step 4.
Repair the harness wire between HBB connector B-107 (terminal 7) and body earth. Then go to Step 10.

STEP 4. Check the HBB earth circuit at HBB harness connector B-108.


(1)Disconnect HBB connector B-108 and measure at the harness connector (component side).
(2)Measure the resistance between terminal 32 and body earth.
OK: Continuity (Less than 2 ohms)

Q. Is the measured resistance less than 2 ohms?

Go to Step 5.
Repair the harness wire between HBB connector B-108 (terminal 32) and body earth. Then go to Step 10.

STEP 5. Check the HBB (continuity and resistance test of the pump motor).


(1)Disconnect HBB connectors B-107 and B-108.
(2)Check for continuity and measure the resistance between terminals at the HBB connectors.
Tester connection
Specified condition
Resistance Ω (Reference value)
2 - 7
Continuity
10 or less
2 - 8
Continuity
Approx. 33
2 - 31
Continuity
Less than 2
4 - 6
Continuity
Approx. 33
4 - 32
Continuity
Approx. 33
6 - 7
Continuity
Less than 2
6 - 32
Continuity
Less than 2
7 - 32
Continuity
Less than 2
8 - 31
Continuity
Approx. 33
31 - 32
Continuity
10 or less

Q. Does continuity exist between above terminals?

Go to Step 7.
Go to Step 6.

STEP 6. Check the pump motor and lead wire.


(1)Remove the HBB (Refer to ).
(2)Remove the pump motor and the lead wire from the HBB (Refer to ).
(3)Check the following items:

  • Confirm that the pump motor operates when the battery voltage is imposed at the pump motor terminal.
  • Confirm the continuity of the lead wire.

Q. Are both of the pump motor and the lead wire in good condition?

Replace the master cylinder and hydraulic unit assembly (Refer to ). Then go to Step 10.
Replace the pump motor or the lead wire (Refer to ). Then go to Step 10.

STEP 7. Check ASTC-ECU connector D-233 for loose, corroded or damaged terminals, or terminals pushed back in the connector.


Q. Is the check result normal?

Go to Step 8.
Repair the faulty connector or terminal. Then go to Step 10.

STEP 8. Check the following harness wires.



  • The wire between HBB connector B-107 (terminal 4) and ASTC-ECU connector D-233 (terminal 25)
  • The wire between HBB connector B-107 (terminal 6) and ASTC-ECU connector D-233 (terminal 12)
  • The wire between HBB connector B-107 (terminal 8) and ASTC-ECU connector D-233 (terminal 14)

Q. Is any harness wire damaged?

Repair it. Then go to Step 10.
Go to Step 9.

STEP 9. Recheck for diagnosis code.


(1)Erase the diagnosis code.
(2)Recheck for diagnosis code.

Q. Is code No.53 set?

Replace the ASTC-ECU (Refer to GROUP 35C, ASTC-ECU ). Then go to Step 10.
It can be assumed that this malfunction is intermittent. Refer to GROUP 00, How to Use Troubleshooting/Inspection Service Points - How to Cope with Intermittent Malfunction .

STEP 10. Recheck for diagnosis code.


(1)Erase the diagnosis code.
(2)Recheck for diagnosis code.

Q. Is code No.53 set?

Start over at Step 1.
The procedure is complete.