Inspection Procedure 6: The compressor does not work <4M4>


































COMMENTS ON TROUBLE SYMPTOM


If the A/C compressor does not operate, the A/C compressor circuit system may be defective.

PROBABLE CAUSES



  • Malfunction of A/C compressor
  • Malfunction of A/C compressor relay
  • Malfunction of A/C pressure sensor
  • Damaged harness wires and connectors
  • Malfunction of engine-A/T-ECU
  • Malfunction of the A/C-ECU

DIAGNOSIS PROCEDURE


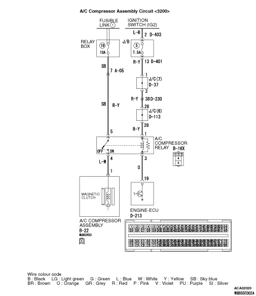
STEP 1. Connector check: D-213 engine-ECU connector and B-22 A/C compressor assembly connector


Q. Is the check result normal?

Go to Step 2.
Repair the connector.

STEP 2. Voltage measurement at B-22 A/C compressor assembly connector.


(1)Disconnect the connector, and measure at the wiring harness side.
(2)Turn the ignition switch to the "ON" position.
(3)Disconnect engine-ECU connector D-213 and earth terminal 19.
(4)Voltage between terminal 1 and body earth.
OK: System voltage

Q. Is the check result normal?

Go to Step 11.
Go to Step 3.

STEP 3. Connector check: B-16X A/C compressor relay connector


Q. Is the check result normal?

Go to Step 4.
Repair the connector.

STEP 4. Check the A/C compressor relay continuity.


Refer to .

Q. Is the A/C compressor relay in good condition?

Go to Step 5.
Replace the A/C compressor relay.

STEP 5. Voltage measurement at B-16X A/C compressor relay connector.


(1)Remove the relay, and measure at the relay block side.
(2)Turn the ignition switch to the "ON" position.
(3)Voltage between terminal 1 and body earth.
OK: System voltage

Q. Is the check result normal?

Go to Step 7.
Go to Step 6.

STEP 6. Check the wiring harness between B-16X A/C compressor relay connector terminal No.1 and the ignition switch (IG2).


note Prior to the wiring harness inspection, check junction block connectors D-113, D-403, D-401, joint connector D-37,intermediate connector D-230 and repair if necessary.

  • Check the A/C compressor relay power supply line for open circuit.

Q. Is the check result normal?

The trouble can be an intermittent malfunction (Refer to GROUP 00, How to Cope with Intermittent Malfunction ).
Repair the wiring harness.

STEP 7. Voltage measurement at B-16X A/C compressor relay connector.


(1)Remove the relay, and measure at the relay block side.
(2)Voltage between terminal 5 and body earth.
OK: System voltage

Q. Is the check result normal?

Go to Step 9.
Go to Step 8.

STEP 8. Check the wiring harness between B-16X A/C compressor relay connector terminal No.5 and the fusible link (1).


note Prior to the wiring harness inspection, check intermediate connector A-05, and repair if necessary.

  • Check the A/C compressor relay power supply line for open circuit.

Q. Is the check result normal?

The trouble can be an intermittent malfunction (Refer to GROUP 00, How to Cope with Intermittent Malfunction ).
Repair the wiring harness.

STEP 9. Check the wiring harness between D-213 engine-ECU connector terminal No.19 and B-16X A/C compressor relay connector terminal No.3.



  • Check the A/C compressor relay power supply line for open circuit.

Q. Is the check result normal?

Go to Step 10.
Repair the wiring harness.

STEP 10. Check the wiring harness between B-16X A/C compressor relay connector terminal No.4 and B-22 A/C compressor assembly connector terminal No.1.



  • Check the A/C compressor power supply line for open circuit.

Q. Is the check result normal?

The trouble can be an intermittent malfunction (Refer to GROUP 00, How to Cope with Intermittent Malfunction ).
Repair the wiring harness.

STEP 11. Check the magnetic clutch operation.


Refer to .

Q. Can the sound of the magnetic clutch (click) be heard?

Go to Step 12.
Replace the compressor magnet clutch.

STEP 12. Connector check: D-08 A/C-ECU connector, D-213 and D-216.


Q. Is the check result normal?

Go to Step 13.
Repair the connector.

STEP 13. Check the wiring harness between D-213 engine-ECU connector (terminals 8 and 12) and D-08 A/C-ECU connector (terminals 13 and 12).


note Prior to the wiring harness inspection, check intermediate connector D-230, and repair if necessary.

  • Check the engine-A/T-ECU input line for open circuit.

Q. Is the check result normal?

Go to Step 14.
Repair the wiring harness.

STEP 14. Remove the refrigerant, and fill it to the specified amount.


Remove the refrigerant and fill it to the specified amount. Then check if the A/C operates normally. Refer to .

Q. Is the check result normal?

This diagnosis is complete.
Go to Step 15.

STEP 15. Replace the control panel sub assembly and check the trouble symptom


Check that the compressor works normally.

Q. Is the check result normal?

This diagnosis is complete.
Go to Step 16.

STEP 16. Replace the A/C-ECU, and then recheck the trouble symptom


Check that the compressor works normally.

Q. Is the check result normal?

This diagnosis is complete.
Replace the engine-ECU.