|
|
Q.
Is diagnosis code B1519 set?
|
|
|
(1)Disconnect the negative battery terminal.
|

|
(2)Disconnect the connectors C-154 and then reconnect them. (3)Connect the negative battery terminal. (4)Erase the diagnosis code memory, and check the diagnosis code.
Q.
Is diagnosis code B1410 set?
Go to Step 3.
The procedure is complete. It is assumed that diagnosis code B1410 set as connector
C-154 was engaged improperly.
|
|
|
(1)Disconnect the negative battery terminal.
|


|
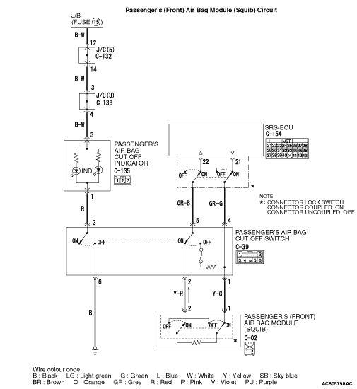
(2)Disconnect connectors C-02 and C-154, and then reconnect them. For connector C-02, pull
up the harness side lock lever with a nail and disconnect the connector lock. (3)Connect the negative battery terminal. (4)Erase the diagnosis code memory, and check the diagnosis code.
Q.
Is diagnosis code B1410 set?
Go to Step 4.
The procedure is complete. It is assumed that diagnosis code B1410 set as connector
C-02 or C-154 was engaged improperly.
|
|
|
Check the passenger’s air bag cut off switch (Refer to ).
|
|
|
Q.
Is the check result normal?
|
|
|
Replace passenger’s air bag cut off switch (Refer to ).
|
|
|
|
|
|
(1)Disconnect the negative battery terminal.
|

|
(2)Disconnect passenger’s (front) air bag module connector C-02. Pull up the harness
side lock lever with a nail and disconnect the connector lock.
|

|
(3)Connect special tool dummy resistor (MB991865) to special tool resistor harness (MB991866). (4)
| caution |
Do not insert a test probe into the
terminal from its front side directly as the connector contact pressure may be weakened.
|
Insert special tool (MB991866) into the harness side connector C-02 by backprobing. (5)Check that the passenger’s air bag cut off switch is "ON" position. (6)Connect the negative battery terminal. (7)Erase the diagnosis code memory, and check the diagnosis code.
Q.
Is diagnosis code B1410 set?
Go to Step 6.
Replace the passenger’s (front) air bag module (Refer to ).
|
|
|
(1)Disconnect the negative battery terminal.
|

|
(2)Disconnect SRS-ECU connector C-154.
|

|
(3)
| danger |
To prevents the air bag from deploying unintentionally, disconnect the passenger’s
(front) air bag module connector C-02 to short the squib circuit.
|
Disconnect passenger’s (front) air bag module connector C-02. Pull up the harness
side lock lever with a nail and disconnect the connector lock.
|

|
(4)
| caution |
Insert an insulator such as a cable tie to a depth of 7 mm or more, otherwise the short
spring will not be released.
|
Insert a cable tie [3 mm wide, 0.5 mm thick] between terminals 21, 22
and the short spring to release the short spring. (5)Check that the passenger’s air bag cut off switch is "ON" position.
|

|
(6)
| caution |
Do not insert a test probe into the terminal from its front side directly as the connector contact
pressure may be weakened.
|
Resistance measurement between C-154 harness side connector terminals 21 and 22. OK: Open circuit
Q.
Is the check result normal?
Go to Step 7.
Repair the harness wires between SRS-ECU connector C-154 (terminal No.21 and 22)
and passenger’s (front) air bag module connector C-02 (terminal No.1 and 2).
|
|
|
Q.
Is diagnosis code B1410 set?
|
|
|
Replace the SRS-ECU (Refer to ).
|
|
|
|
|
|
An intermittent malfunction is suspected (Refer to GROUP 00, How to Cope with
Intermittent Malfunction ).
|
|
|
|