INSPECTION PROCEDURE 8: The compressor does not work <2400, 3000>
















COMMENTS ON TROUBLE SYMPTOM


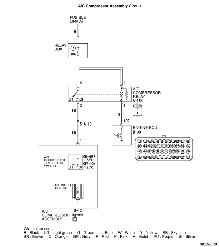
When the A/C compressor does not work, the A/C compressor circuit system may be defective.

PROBABLE CAUSES



  • Malfunction of A/C compressor
  • Malfunction of A/C compressor relay
  • Malfunction of A/C pressure sensor
  • Damaged harness wires and connectors
  • Malfunction of engine-ECU
  • Malfunction of the A/C-ECU

DIAGNOSIS PROCEDURE


STEP 1. M.U.T.-III CAN bus diagnostics


Use the M.U.T.-III to diagnose the CAN bus lines.

Q. Is the check result normal?

Go to Step 2.
Repair the CAN bus lines. (Refer to GROUP 54C - Troubleshooting ).

STEP 2. M.U.T.-III diagnosis code


Check whether the A/C sets a diagnosis code or not.

Q. Is the check result normal?

Go to Step 3.
Refer to diagnosis code chart .

STEP 3. Connector check: B-12 A/C compressor assembly connector and B-30 engine-ECU connector


Q. Is the check result normal?

Go to Step 4.
Repair the connector.

STEP 4. Voltage measurement at B-12 A/C compressor assembly connector.


(1)Disconnect the connector, and measure at the wiring harness side.
(2)Turn the ignition switch to the "ON" position.
(3)Disconnect engine-ECU connector B-30 and earth terminal 102.
(4)Voltage between terminal 1 and body earth.
OK: System voltage

Q. Is the check result normal?

Go to Step 5.
Go to Step 9.

STEP 5. Check the A/C compressor.


Refer to .

Q. Is the check result normal?

Go to Step 6.
Replace the A/C compressor.

STEP 6. Check the refrigerant temperature switch.


Refer to .

Q. Is the refrigerant temperature switch operating properly?

Go to Step 7.
Replace the refrigerant temperature switch.

STEP 7. Check the refrigerant level.


Refer to .

Q. Is the refrigerant level correct?

Go to Step 8.
Correct the refrigerant level (Refer to On-vehicle Service ).

STEP 8. Replace the A/C-ECU, and then recheck the trouble symptom


Check that the compressor works normally.

Q. Is the check result normal?

This diagnosis is complete.
Replace the engine-ECU. Replace the engine-ECU, and then register the ID code (Refer to GROUP 42B Troubleshooting - ID code registration judgment table <Vehicles with KOS> or GROUP 42C Troubleshooting - ID code registration judgment table <Vehicles without KOS>).

STEP 9. Connector check: A-16X A/C compressor relay connector


Q. Is the check result normal?

Go to Step 10.
Repair the connector.

STEP 10. Check the A/C compressor relay


Refer to .

Q. Is the check result normal?

Go to Step 11.
Replace the A/C compressor relay.

STEP 11. Voltage measurement at A-16X A/C compressor relay connector.


(1)Remove the relay, and measure at the relay block side.
(2)Voltage between terminal 2, 4 and body earth.
OK: System voltage

Q. Is the check result normal?

Go to Step 13.
Go to Step 12.

STEP 12. Check the wiring harness between A-16X A/C compressor relay connector terminal No.2, 4 and the fusible link (34).



  • Check the A/C compressor relay power supply line for open circuit.

Q. Is the check result normal?

The trouble can be an intermittent malfunction (Refer to GROUP 00, How to Cope with Intermittent Malfunction ).
Repair the wiring harness.

STEP 13. Check the wiring harness between A-16X A/C compressor relay connector terminal No.3 and B-12 A/C compressor assembly connector terminal No.1.



  • Check the A/C compressor power supply line for open circuit.
note Prior to the wiring harness inspection, check intermediate connector A-13, and repair if necessary.

Q. Is the check result normal?

Go to Step 14.
Repair the wiring harness.

STEP 14. Check the wiring harness between A-16X A/C compressor relay connector terminal No.2 and B-30 engine-ECU connector terminal No.102.



  • Check the A/C compressor relay power supply line for open circuit.

Q. Is the check result normal?

The trouble can be an intermittent malfunction (Refer to GROUP 00, How to Cope with Intermittent Malfunction ).
Repair the wiring harness.